Retail

  • $35,000
895, Madison Avenue, Manhattan Community Board 8, Manhattan, New York County, City of New York, New York, 10021, United States
For Rent
Retail
895, Madison Avenue, Manhattan Community Board 8, Manhattan, New York County, City of New York, New York, 10021, United States
  • $35,000

Description

Prestigious Madison Avenue Retail Space – 895–901 Madison Avenue, New York, NY 10021
Asking Rent: $35,000/month
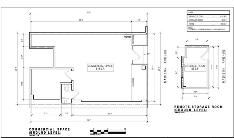
Size: 615 SF
Use: Luxury Retail / Gallery / Boutique / Showroom
Location: Prime Upper East Side – Madison Avenue between East 72nd & 73rd Streets
Availability: Immediate

Property Overview:
Situated in the heart of Madison Avenue’s premier retail corridor, 895–901 Madison Avenue offers 615 square feet of high-end ground-floor retail space, ideal for luxury brands, art galleries, or upscale boutiques. Surrounded by world-renowned designer flagships, fine dining, and affluent residential buildings, this location delivers both prestige and performance in one of Manhattan’s most iconic shopping destinations.

Key Features:

  • 615 SF prime ground-floor retail space
  • Expansive glass storefront with excellent branding visibility
  • Elegant façade and classic Upper East Side architecture
  • High ceilings and flexible interior layout
  • Steps from Central Park, The Met, and global luxury brands

Ideal For:

  • Luxury fashion or accessory retailer
  • Fine art or jewelry gallery
  • Bespoke beauty or skincare concept
  • High-end showroom or concierge service

Highlights:

  • Asking rent: $35,000/month
  • Premier Madison Avenue address with exceptional foot traffic
  • Surrounded by top-tier national and international brands
  • Immediate availability

Conclusion:
895–901 Madison Avenue presents an exceptional opportunity to secure a boutique-sized retail space in one of the most prestigious commercial corridors in the world. Ideal for refined brands seeking visibility, elegance, and alignment with luxury neighbors.

Contact us today to schedule a private tour or request additional information.

Schedule a Tour

Your information

Compare listings

Compare
InRealEstate
  • InRealEstate