Retail

  • $90,000
201, East 36th Street, Murray Hill, Manhattan Community Board 6, Manhattan, New York County, City of New York, New York, 10016, United States
For Rent
Retail
201, East 36th Street, Murray Hill, Manhattan Community Board 6, Manhattan, New York County, City of New York, New York, 10016, United States
  • $90,000

Description

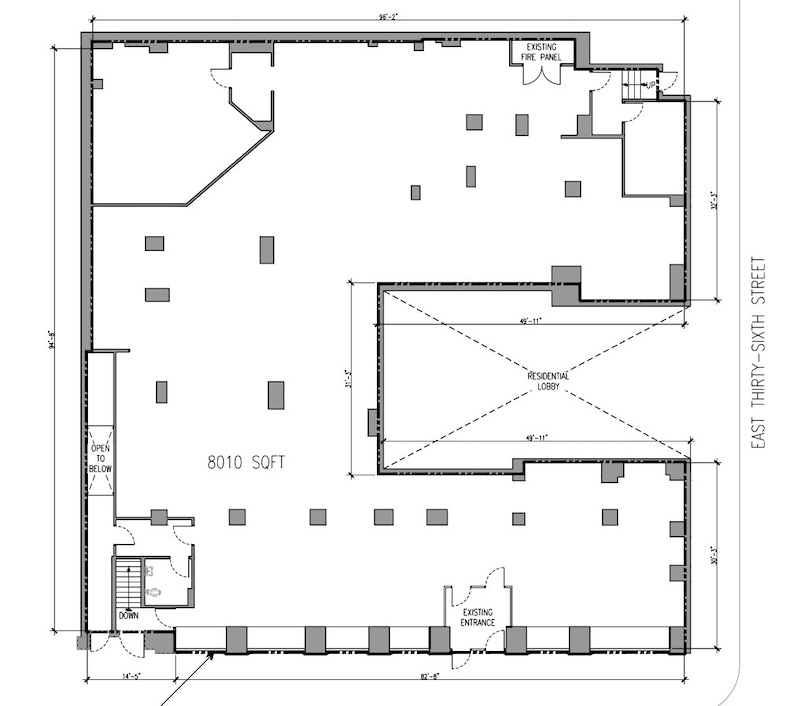
Expansive Corner Commercial Space – 201 East 36th Street, New York, NY 10016
Asking Rent: $90,000/month
Size: 8,000 SF
Use: Medical / Office / Wellness / Showroom / Educational / Mixed Commercial
Location: Murray Hill – East 36th Street & 3rd Avenue
Frontage: Wraparound corner exposure with prominent signage visibility
Availability: Immediate

Property Overview:
201 East 36th Street offers 8,000 square feet of high-exposure corner commercial space in the heart of Murray Hill. Featuring wraparound frontage and multiple entry points, this expansive layout is ideal for medical, wellness, educational, or office users seeking scale and a commanding street presence in one of Midtown’s most stable residential and professional neighborhoods.

Key Features:

  • Full-Floor Opportunity: Rarely available footprint with elevator access and flexible layout
  • Prime Corner Exposure: High-visibility wraparound frontage with excellent branding potential
  • Efficient Floor Plan: Combination of open areas, private rooms, and conference spaces
  • High-Density Area: Surrounded by residential towers, hospitals, medical offices, and corporate tenants
  • Transit Accessible: Minutes from Grand Central Terminal, 33rd St. subway, and crosstown buses

Ideal For:

  • Medical groups or specialty clinics
  • Physical therapy or wellness centers
  • Tutoring centers or educational facilities
  • Tech, media, or nonprofit offices

Highlights:

  • 8,000 SF corner commercial space
  • Asking $90,000/month
  • Prominent East Side address with excellent signage exposure
  • Heavy local foot traffic and residential density
  • Flexible lease terms available

Conclusion:
201 East 36th Street is a rare opportunity to lease a high-impact, full-floor commercial space in the heart of Murray Hill. With immediate availability, prominent corner frontage, and versatile interior layout, this space is ideal for institutional users, medical providers, or large office tenants looking to establish a flagship East Side presence.

Contact us today to schedule a private tour or receive a detailed leasing package.

Schedule a Tour

Your information

Compare listings

Compare
InRealEstate
  • InRealEstate