Restaurant

  • $35,000
208, West 10th Street, West Village, Manhattan, New York County, City of New York, New York, 10014, United States
For Rent
Restaurant
208, West 10th Street, West Village, Manhattan, New York County, City of New York, New York, 10014, United States
  • $35,000

Description

Iconic Corner Retail / Restaurant Opportunity in West Village – 208–212 West 10th Street

Address: 208–212 West 10th Street, New York, NY, 10014
Price: $35,000/month
Lease Type: Commercial Lease
Type: Restaurant / Bar / Café / Boutique Retail / Flagship Location
Location: West Village – Corner of West 10th & Bleecker Streets
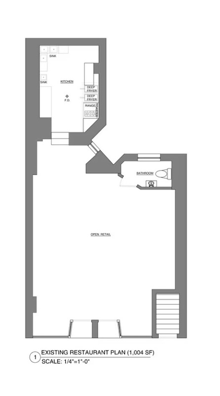
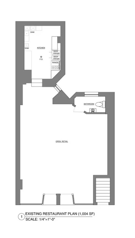
Square Feet: 2,033 SF
Building Class: C (Historic Mixed-Use Building with Ground-Floor Commercial)
Market Segment: Hospitality, Fine Dining, Fashion, Lifestyle Retail, Gallery, Specialty Food & Beverage

Property Overview:

208–212 West 10th Street offers 2,033 SF of prime corner space in one of Manhattan’s most desirable and picturesque neighborhoods—the West Village. With wraparound frontage, charming architectural details, and heavy foot traffic from locals and tourists alike, this space is perfect for a restaurant, bar, boutique retailer, or destination café.

Key Features:

Premier West Village Corner:
✔ Iconic intersection of West 10th Street and Bleecker Street
✔ Surrounded by some of NYC’s most beloved restaurants, bars, and boutiques
✔ Charming storefront with wraparound windows, historic detailing, and high visibility

Versatile Interior for Hospitality or Retail Use:
✔ 2,033 SF with open seating area, bar/service infrastructure, and storage
✔ Venting possible (subject to verification) – ideal for full-service dining
✔ Excellent layout for intimate dining, upscale retail, or hybrid concepts

Transit & Accessibility:
✔ Near 1, A, C, E, B, D, F, and M subway lines
✔ Easily accessed from Soho, Chelsea, and Hudson Square
✔ Strong neighborhood draw with high-income demographics

Highlights:

✔ $35,000/month for 2,033 SF of corner frontage in the West Village
✔ Highly visible, character-rich retail or restaurant space
✔ Surrounded by destination dining, fashion, and nightlife
✔ Immediate availability with flexible terms

Conclusion:

208–212 West 10th Street offers a rare opportunity to anchor your brand in the West Village’s historic and high-demand retail corridor. Whether you’re launching a signature restaurant or curating a luxury boutique, this location delivers charm, visibility, and cultural cachet.

Contact us today to schedule a private tour or request full leasing details.

Schedule a Tour

Your information

Compare listings

Compare
InRealEstate
  • InRealEstate