Restaurant

  • $40,000
325, West 51st Street, Clinton, Manhattan Community Board 4, Manhattan, New York County, City of New York, New York, 10019, United States
For Rent
Restaurant
325, West 51st Street, Clinton, Manhattan Community Board 4, Manhattan, New York County, City of New York, New York, 10019, United States
  • $40,000

Description

Prime Turnkey Restaurant or Retail Space – 325 West 51st Street
Address: 325 West 51st Street, New York, NY, 10019
Price: $40,000/month
Lease Type: Commercial Lease
Type: Restaurant / Bar / Retail / Event Space
Location: Urban – Hell’s Kitchen / Midtown West
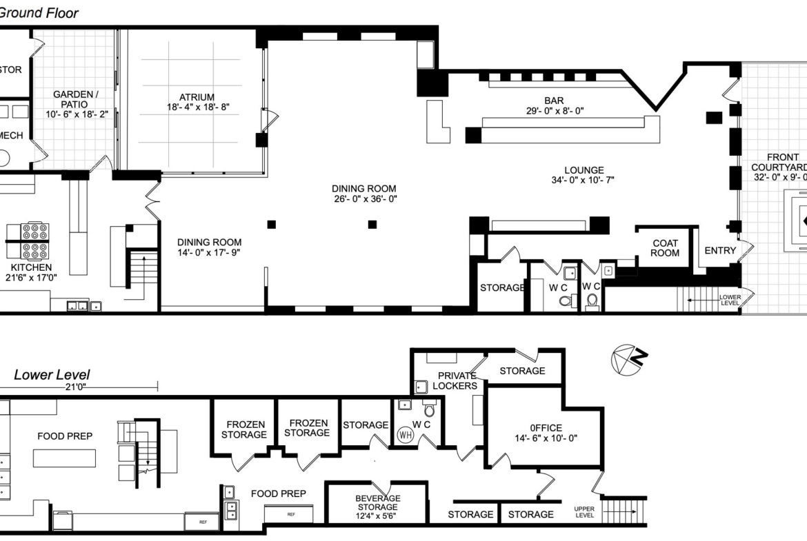
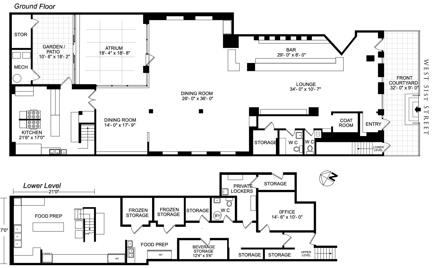
Square Feet: 2,900 SF
Building Class: C
Market Segment: Food & Beverage, Hospitality, Lifestyle Retail, Entertainment Venue

Property Overview:
Located in the heart of Hell’s Kitchen, just steps from Ninth Avenue and the Broadway Theater District, 325 West 51st Street offers an exceptional opportunity to lease 2,900 SF of turnkey commercial space ideal for a restaurant, bar, or specialty retail concept. Surrounded by vibrant nightlife, boutique hotels, and a thriving residential community, this space is perfectly positioned for high-impact, high-visibility operations.

Key Features:

Unbeatable Midtown Location

  • In the heart of Hell’s Kitchen, a block from bustling 9th Avenue
  • Steps to Broadway theaters, Times Square, and Central Park South
  • Popular destination for locals, tourists, and theater-goers

Fully Built & Equipped Space

  • 2,900 SF with restaurant infrastructure in place
  • Venting, kitchen equipment, restrooms, and dining areas included
  • Suitable for restaurant, lounge, wine bar, dessert concept, or flagship retail

Excellent Accessibility & Exposure

  • Located on a well-trafficked block with strong visibility
  • Close to the C/E, 1, N/Q/R/W, and B/D subway lines
  • Constant pedestrian traffic day and night

Highlights:

  • $40,000/month for 2,900 SF of prime, built-out space
  • Located in Manhattan’s highly desirable Hell’s Kitchen district
  • Turnkey infrastructure ideal for immediate restaurant or bar use
  • Great branding opportunity in a busy Midtown corridor
  • Surrounded by foot traffic from theaters, hotels, and residential buildings

Conclusion:
325 West 51st Street offers a rare chance to establish a presence in one of NYC’s most dynamic neighborhoods. Whether you’re an experienced operator expanding your brand or launching a new concept, this ready-to-go location places your business at the center of culture, dining, and nightlife in Midtown West.

Contact us today to schedule a private tour and explore the full potential of this space.

Schedule a Tour

Your information

Compare listings

Compare
InRealEstate
  • InRealEstate