Office

  • $10,000
44, East 65th Street, Lenox Hill, Manhattan Community Board 8, Manhattan, New York County, City of New York, New York, 10065, United States
For Rent
Office
44, East 65th Street, Lenox Hill, Manhattan Community Board 8, Manhattan, New York County, City of New York, New York, 10065, United States
  • $10,000

Description

Prime Upper East Side Boutique Space – Madison Avenue Vicinity
Address: 44 East 65th Street, New York, NY 10021
Asking Rent: $10,000/month
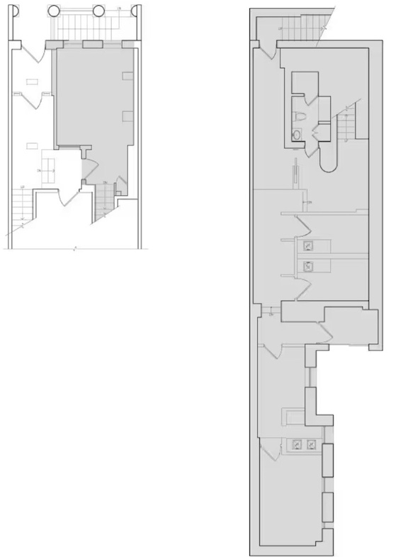
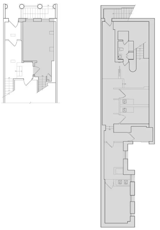
Size: 400 SF
Use: Retail / Gallery / Showroom / Luxury Services
Location: Between Madison Avenue & Park Avenue – Upper East Side
Availability: Immediate

Property Overview:
44 East 65th Street offers an exclusive 400-square-foot boutique space in one of Manhattan’s most refined neighborhoods. Located steps from Madison Avenue’s luxury retail corridor, this property is surrounded by high-end boutiques, art galleries, and fine dining, making it ideal for upscale brands seeking a prestigious Upper East Side address.

Key Features:

  • 400 SF ground-floor boutique space
  • Large storefront display window for maximum visibility
  • Elegant façade in a well-maintained townhouse-style building
  • High ceilings and premium finishes
  • Private restroom and storage area

Ideal For:

  • Luxury fashion or accessories brand
  • Jewelry or watch boutique
  • Art gallery or design studio
  • High-end beauty, spa, or wellness concept
  • Specialty retail or appointment-only showroom

Highlights:

  • Asking Rent: $10,000/month
  • Located just off Madison Avenue in the heart of the Upper East Side
  • Surrounded by premier luxury retailers and cultural institutions
  • Close to Central Park and major museums
  • Easy access to subway lines Q, 4, 5, 6
  • Immediate possession

Conclusion:
44 East 65th Street offers a rare opportunity for a high-end retail or service brand to establish a presence in one of New York City’s most exclusive commercial districts. With its prime location, boutique scale, and elegant presentation, it’s the perfect choice for luxury-oriented businesses seeking a sophisticated customer base.

Contact us today to schedule a private viewing or request further details.

Schedule a Tour

Your information

Compare listings

Compare
InRealEstate
  • InRealEstate