Office

  • $28,000
38, East 29th Street, Rose Hill, Manhattan Community Board 5, Manhattan, New York County, City of New York, New York, 10016, United States
For Rent
Office
38, East 29th Street, Rose Hill, Manhattan Community Board 5, Manhattan, New York County, City of New York, New York, 10016, United States
  • $28,000

Description

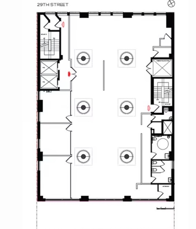
Expansive NoMad Loft Space – 38 East 29th Street, New York, NY 10016
Asking Rent: $28,000/month
Size: 6,500 SF
Use: Office / Showroom / Studio / Creative Workspace
Location: Prime NoMad – East 29th Street between Park & Madison Avenues
Availability: Immediate

Property Overview:
Located in the heart of NoMad, one of Manhattan’s fastest-growing creative and tech hubs, 38 East 29th Street offers 6,500 square feet of bright, open loft space ideal for design firms, showrooms, studios, or collaborative office use. With high ceilings, oversized windows, and a flexible floor plan, this full-floor opportunity blends industrial character with modern convenience just steps from Madison Square Park.

Key Features:

  • 6,500 SF full-floor commercial loft
  • Open layout with polished concrete floors and exposed ceilings
  • Abundant natural light with large windows on both sides
  • Passenger elevator and private keyed access
  • In-suite bathrooms and pantry area

Ideal For:

  • Creative agency or architecture studio
  • Fashion showroom or media production
  • Tech startup or co-working concept
  • Event space or educational/training facility

Highlights:

  • Asking rent: $28,000/month – excellent value for size and location
  • Located near 6/R/W trains and Madison Square Park
  • Surrounded by top restaurants, hotels, and office towers
  • Immediate availability with flexible lease terms

Conclusion:
38 East 29th Street presents a rare opportunity to lease a full-floor loft in the heart of NoMad. Ideal for forward-thinking businesses looking for space, flexibility, and presence in one of Manhattan’s most dynamic commercial neighborhoods.

Contact us today to schedule a private tour or request additional details.

Schedule a Tour

Your information

Compare listings

Compare
InRealEstate
  • InRealEstate