Office

  • $50,000
45, West 25th Street, Manhattan Community Board 5, Manhattan, New York County, City of New York, New York, 10010, United States
For Rent
Office
45, West 25th Street, Manhattan Community Board 5, Manhattan, New York County, City of New York, New York, 10010, United States
  • $50,000

Description

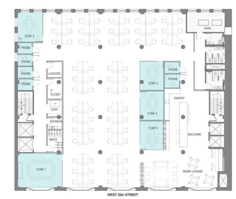
Expansive Full-Floor Loft / Showroom – 45 West 25th Street, New York, NY 10010
Asking Rent: $50,000/month
Size: 10,912 SF
Use: Showroom / Creative Office / Gallery / Production Studio / Retail
Location: Flatiron District – West 25th Street between 5th & 6th Avenues
Availability: Immediate

Property Overview:
45 West 25th Street offers an impressive 10,912 square feet of full-floor loft space in one of Manhattan’s most vibrant creative and design hubs. Featuring soaring ceilings, abundant natural light, and an open, flexible layout, this property is ideal for fashion showrooms, hybrid creative offices, galleries, or event concepts.

Just steps from Madison Square Park, Eataly, and Fifth Avenue, the building is surrounded by tech companies, creative agencies, and design firms, providing a strong commercial ecosystem and high pedestrian activity.

Key Features:

  • 10,912 SF of contiguous, open-plan space
  • High ceilings and large industrial-style windows for excellent light
  • Private restrooms, HVAC, and direct elevator access
  • Column-free layout, ideal for custom build-outs
  • Convenient access to N/R/W, F/M, and 6 subway lines

Ideal For:

  • Fashion, furniture, or interior design showroom
  • Creative agency or hybrid office space
  • Art or photography gallery
  • Event production or pop-up experiences
  • High-end wellness or fitness concepts

Highlights:

  • Asking Rent: $50,000/month
  • Large-scale, flexible loft space in Flatiron
  • Steps from top dining, shopping, and lifestyle destinations
  • Immediate possession with customizable layout options

Conclusion:
45 West 25th Street presents a rare opportunity to secure nearly 11,000 square feet of full-floor loft space in the heart of the Flatiron District. Perfect for brands or companies looking for scale, character, and a prime location.

Contact us today for floor plans, brochures, or to arrange a private showing.

Schedule a Tour

Your information

Compare listings

Compare
InRealEstate
  • InRealEstate