Office

  • $15,000
18, East 17th Street, Union Square, Manhattan Community Board 5, Manhattan, New York County, City of New York, New York, 10003, United States
For Rent
Office
18, East 17th Street, Union Square, Manhattan Community Board 5, Manhattan, New York County, City of New York, New York, 10003, United States
  • $15,000

Description

Union Square Creative Loft / Retail Opportunity – 18 East 17th Street, New York, NY 10003
Asking Rent: $15,000/month
Size: 3,000 SF
Use: Retail / Showroom / Gallery / Creative Office / Studio
Location: Union Square / Flatiron – East 17th Street between Broadway & 5th Avenue
Frontage: Discreet, loft-style entry with elevator access
Availability: Immediate

Property Overview:
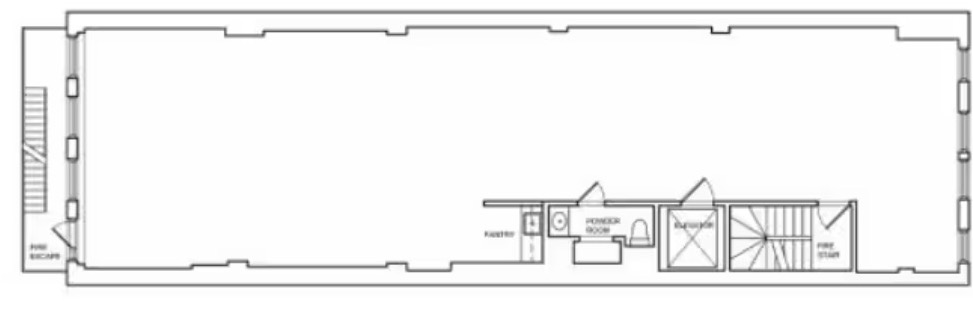
18 East 17th Street offers a rare opportunity to lease an expansive 3,000-square-foot full-floor loft space in one of Manhattan’s most vibrant and accessible neighborhoods—Union Square. With high ceilings, oversized windows, and open-plan flexibility, this space is ideal for creative offices, design studios, galleries, or showroom use.

Located just steps from Union Square Park, the building sits at the nexus of Flatiron, Gramercy, and Greenwich Village, offering unmatched access to transit, dining, and amenities. The building maintains a classic New York loft aesthetic with modern infrastructure.

Key Features:

  • Full-floor 3,000 SF loft with elevator access
  • Excellent natural light and high ceilings
  • Hardwood floors and flexible open layout
  • Located steps from Union Square (4/5/6, N/Q/R/W, L subway lines)
  • Perfect for gallery, showroom, office, or hybrid retail use

Ideal For:

  • Creative agencies or design firms
  • Art or photography galleries
  • Fashion or home furnishings showroom
  • Wellness, fitness, or experiential concept
  • Professional firms seeking open-plan workspace

Highlights:

  • 3,000 SF full-floor commercial loft
  • Asking Rent: $15,000/month
  • Located in the heart of Union Square/Flatiron District
  • Bright, flexible, and move-in ready
  • Immediate occupancy

Conclusion:
18 East 17th Street delivers a rare blend of size, character, and location—ideal for users seeking a full-floor commercial loft in one of Manhattan’s most energetic and connected submarkets. With flexible use potential and a prime downtown address, this space is ready for your next venture.

Contact us today to schedule a private tour or request floor plans and leasing details.

Schedule a Tour

Your information

Compare listings

Compare
InRealEstate
  • InRealEstate