Office

  • $65,000
477 Madison Avenue, 477, Madison Avenue, Midtown East, Manhattan Community Board 5, Manhattan, New York County, City of New York, New York, 10022, United States
For Rent
Office
477 Madison Avenue, 477, Madison Avenue, Midtown East, Manhattan Community Board 5, Manhattan, New York County, City of New York, New York, 10022, United States
  • $65,000

Description

Corporate-Grade Retail or Showroom – 477 Madison Avenue

Address: 477 Madison Avenue, New York, NY 10022
Price: $65,000/month
Lease Type: Commercial Lease
Type: Retail / Showroom / Professional Office / Financial Services
Location: Urban – Midtown East / Plaza District / Fifth Avenue Corridor
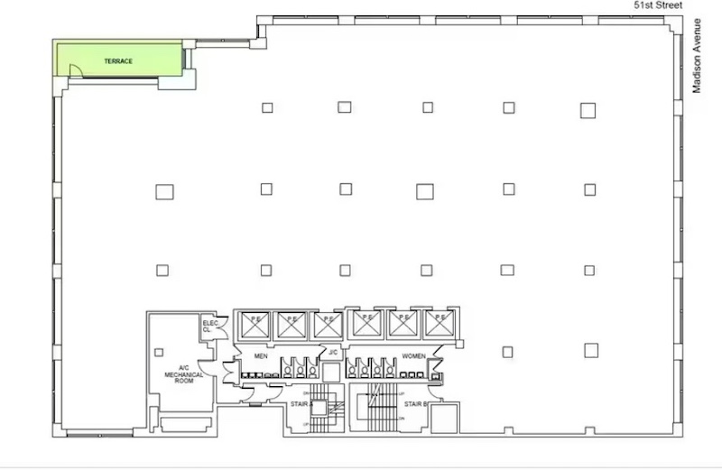
Square Feet: 8,019 SF
Building Class: A
Market Segment: Luxury Retail, Flagship Showrooms, Corporate HQ, Financial & Professional Services

Property Overview

477 Madison Avenue presents 8,019 square feet of premium commercial space in one of Midtown Manhattan’s most prestigious business districts. Offering exceptional proximity to Rockefeller Center, Fifth Avenue, and Park Avenue, this modern, full-floor opportunity is ideal for sophisticated tenants in retail, financial services, private wealth management, or showroom-based operations.

Key Features

Prime Plaza District Location

  • Located at Madison Avenue and 51st Street
  • Surrounded by world-renowned retail, corporate headquarters, luxury hotels, and dining
  • Immediate proximity to St. Patrick’s Cathedral, MoMA, and Fifth Avenue shopping

Professional, High-End Interior

  • 8,019 SF of polished commercial space with flexible layout
  • Full-floor opportunity with elevator identity and direct access
  • High ceilings, large windows, and abundant natural light

Transit & Access

  • Steps from 51st Street (E, M), 5th Ave–53rd St (E, M), and Grand Central Terminal
  • Easily accessible to clients and employees from across NYC and Westchester
  • Excellent signage opportunities and brand visibility in Midtown’s core business hub

Highlights

  • $65,000/month for 8,019 SF of premium Midtown commercial space
  • Full-floor identity in a well-managed Class A building
  • Ideal for financial services, luxury showroom, executive office, or hybrid retail use
  • Flexible lease terms and immediate availability

Conclusion

477 Madison Avenue delivers a strategic Midtown presence for discerning tenants seeking prestige, access, and professionalism. With an adaptable layout, exceptional transportation links, and exposure to one of Manhattan’s most affluent and active commercial corridors, this address supports both brand authority and operational efficiency.

Contact us today to schedule a private tour or receive a full leasing brochure.

Schedule a Tour

Your information

Compare listings

Compare
InRealEstate
  • InRealEstate