Office

  • $34,000
451, Broadway, SoHo, Manhattan, New York County, City of New York, New York, 10013, United States
For Rent
Office
451, Broadway, SoHo, Manhattan, New York County, City of New York, New York, 10013, United States
  • $34,000

Description

Expansive SoHo Commercial Space – 451 Broadway, New York, NY 10013

Monthly Rent: $34,000
Size: 6,600 square feet
Type: Office / Showroom / Creative / Retail
Location: SoHo – Manhattan
Use: Ideal for design firms, tech companies, showrooms, galleries, or creative studios
Lease Type: Commercial lease

Property Overview:

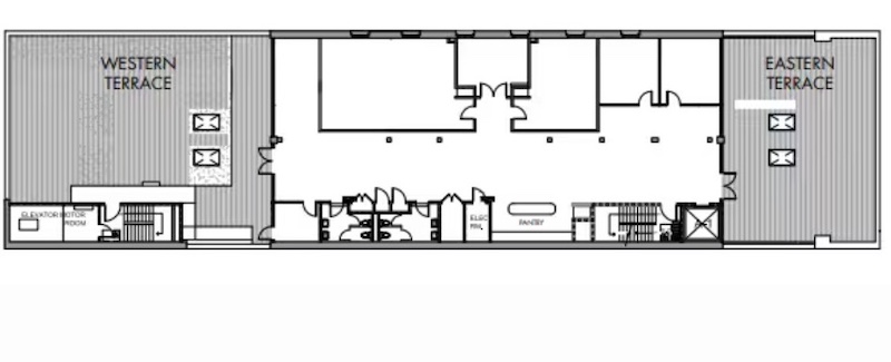
451 Broadway offers 6,600 square feet of expansive, full-floor commercial space in the heart of SoHo. With soaring ceilings, oversized windows, and a wide-open layout, this space is ideal for businesses seeking a dynamic and inspiring environment in one of New York’s most prestigious creative districts.

Key Features:

  • 6,600 SF of full-floor commercial space
  • High ceilings and abundant natural light
  • Classic cast-iron building with original architectural details
  • Flexible layout suitable for offices, showrooms, or hybrid workspaces
  • Elevator access and secure entry

Location & Accessibility:

Positioned between Grand and Howard Streets, 451 Broadway is in prime SoHo—steps from Canal Street and surrounded by high-end retail, design studios, and major subway lines including the N/Q/R/W, 6, and A/C/E trains.

Highlights:

  • $34,000/month for 6,600 SF in an iconic downtown location
  • Excellent light, air, and layout flexibility
  • Surrounded by creative firms, luxury boutiques, and dining destinations
  • Well-suited for established brands or fast-growing ventures
  • Available immediately

Summary:

451 Broadway is a rare opportunity to lease a substantial, character-rich space in one of Manhattan’s most sought-after commercial neighborhoods. Perfect for businesses that value aesthetics, location, and versatility.

Contact us today to schedule a private tour or request full leasing details.

Schedule a Tour

Your information

Compare listings

Compare
InRealEstate
  • InRealEstate