Medical office

  • $17,000
200, East 62nd Street, Manhattan Community Board 8, Manhattan, New York County, City of New York, New York, 10065, United States
For Rent
Medical office
200, East 62nd Street, Manhattan Community Board 8, Manhattan, New York County, City of New York, New York, 10065, United States
  • $17,000

Description

Elegant Commercial Space in Upper East Side Luxury Building – 200 East 62nd Street

Address: 200 East 62nd Street, New York, NY, 10065
Price: $17,000/month
Lease Type: Commercial Lease
Type: Medical Office / Wellness Studio / Gallery / Showroom / Professional Services
Location: Upper East Side – Lenox Hill / Near Park Avenue & Midtown East
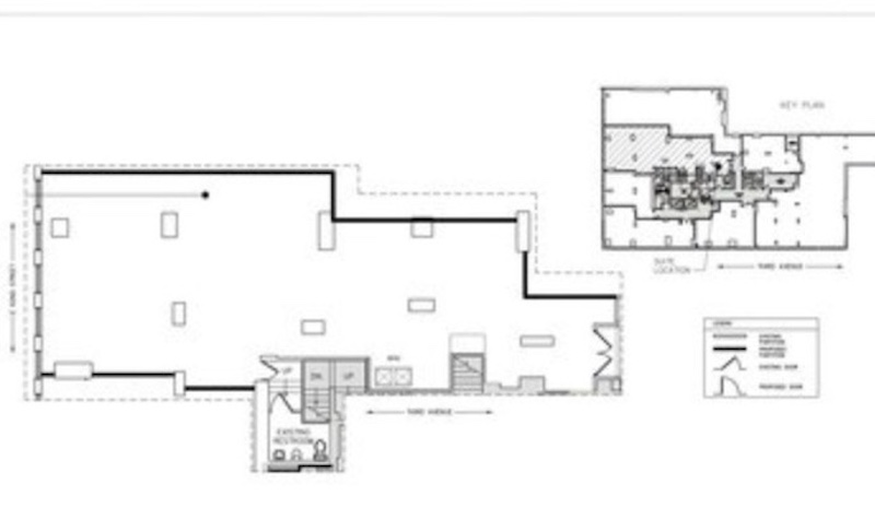
Square Feet: 2,781 SF
Building Class: A (Luxury Mixed-Use Condominium with Retail/Office Component)
Market Segment: Medical & Wellness, Boutique Retail, Art & Design, Law, Consulting, Financial Services

Property Overview:

Located in one of the Upper East Side’s premier full-service condominium buildings, 200 East 62nd Street offers 2,781 SF of elegant, ground-level commercial space perfect for medical, wellness, or professional office use. Situated at the corner of Third Avenue and East 62nd Street, this high-visibility space benefits from a prestigious address, upscale surroundings, and strong residential density.

Key Features:

Prime Upper East Side Location:
✔ Positioned at Third Avenue and East 62nd Street
✔ Surrounded by luxury condominiums, high-end retail, and medical facilities
✔ Near Bloomingdale’s, Lenox Hill Hospital, and Park Avenue

Sophisticated Layout & Buildout:
✔ 2,781 SF with flexible layout options: reception, treatment rooms, private offices
✔ High ceilings, large windows, and excellent natural light
✔ Direct street-level access with potential for signage and branding
✔ Built with high-end finishes, ideal for high-touch client or patient experience

Transit & Accessibility:
✔ Near Q, F, N, R, 4, 5, 6 subway lines
✔ Easily accessible for clients from Midtown, UES, and Roosevelt Island
✔ Strong foot traffic and proximity to major hospitals and medical clusters

Highlights:

✔ $17,000/month for 2,781 SF of Class A commercial space
✔ Suitable for medical, wellness, gallery, or professional office use
✔ Prestigious address in a luxury building with excellent amenities
✔ Available immediately with flexible lease terms

Conclusion:

200 East 62nd Street offers a unique opportunity to lease premium commercial space in one of Manhattan’s most affluent and well-trafficked neighborhoods. Perfect for professionals or boutique brands seeking luxury, location, and credibility under one roof.

Contact us today to schedule a private tour or request full leasing details.

Schedule a Tour

Your information

Compare listings

Compare
InRealEstate
  • InRealEstate